Park For Sale!

Chesterfield Township, MI.

Evergreen Meadows Mobile Home Park

30086 Pineview Chesterfield Twp, MI. 48051    

REDUCED $3,400,000 

Owner will consider financing 

Park Highlights

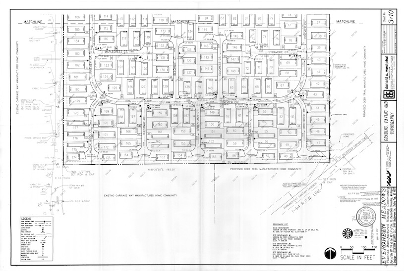
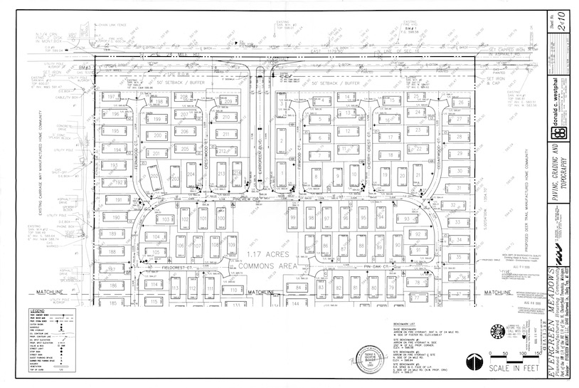
Attention all park owners and investors, EZ Homes is proudly marketing the beautiful mobile home community Evergreen Meadows located in Chesterfield Twp MI.  This incredible 36 acre, 214  family site mobile home community is the crown jewel of the area.   It was built in 2002 and sits in the heart of 24 mile road / I-94 and Gratiot corridor.  It is nestled between some very nice housing subdivisions.  It offers up to date / state of the art municipal water and sewer systems and all the electrical / gas lines are installed.  As said earlier the park  has 214 sites, 25 of which are filled and occupied.  There are 11 sites that are designated for single wides and the rest are designed for double wides.  Low lot rent at $350 per month offers an incredible value for the region where lot rents are typically in the mid to upper $450-490 price range.  

All the homes have brick style skirting as a standard and 3/12 and 5 /12 pitched homes are common in this community.  It comes with a very nice community center with a 3 car garage attached.  A full basement and offices allow for a manager and staff to work in comfort and style.  All the work has been done to construct this park and in todays costs of land and development this park would far exceed the asking price.  The community sits close to the award wining Lans Cruese school system  and buses do come into the community for the schools.  Across the street is a child care center and all the convenience stores and restaurants are all near by.  The park does have a part time manager managing the community and a maintenance staff as well.  Don’t hesitate to inquire about the community. Bid with confidence on this hidden gem in Macomb County that is a “newer”  construction community. All reasonable offers are being considered.

 

Chesterfield

For detailed information on this property please contact:

Dan Leighton

leightond@ezhomesgo.com 

(810) 614-9181

COMMUNITY PRICE $4,494,000
PRICE PER SITE $21,000
DEVELOPED SITES 214
YEAR CONSTRUCTED 2002
LAND (ACRES) + 36
OCCUPANCY 12%
AVERAGE RENT/SITE $350
PRIMARY USE MHC
  • 36 acres of prime real estate full developed as a mobile home  community in Chesterfield Twp.
  • Park has 214 sites, 25 occupied
  • Municipal water and sewer
  • Beautiful community center with 3 car garage
  • Close to award winning L’Anse Creuse School District
  • Close to I-94 / Gratiot corridor
  • Shopping and restaurants only four minutes away
  • Senior center nearby
  • Operating Part time manager / maintenance staff